artista
Roberto Burle Marx

Roberto Burle Marx nasceu em São Paulo em 4 de agosto de 1909, mas viveu no Rio de Janeiro até sua morte, em 1994, aos 84 anos. Legou-nos uma obra rica e de renome mundial nos campos do paisagismo arquitetônico, das artes plásticas e da botânica.
Estudou pintura na Alemanha (1928-1929), onde se encantou com as obras de Van Gogh. No Jardim Botânico de Berlim, uma grande coleção de espécies da flora tropical brasileira o influenciou definitivamente para a busca do belo na natureza.
Em 1931, ocupou a cátedra de pintura da Escola Nacional de Belas Artes. Em 1932, executou seu primeiro jardim na casa da família Schwartz em Copacabana, no Rio de Janeiro, um projeto de Warchavchik e de Lucio Costa.
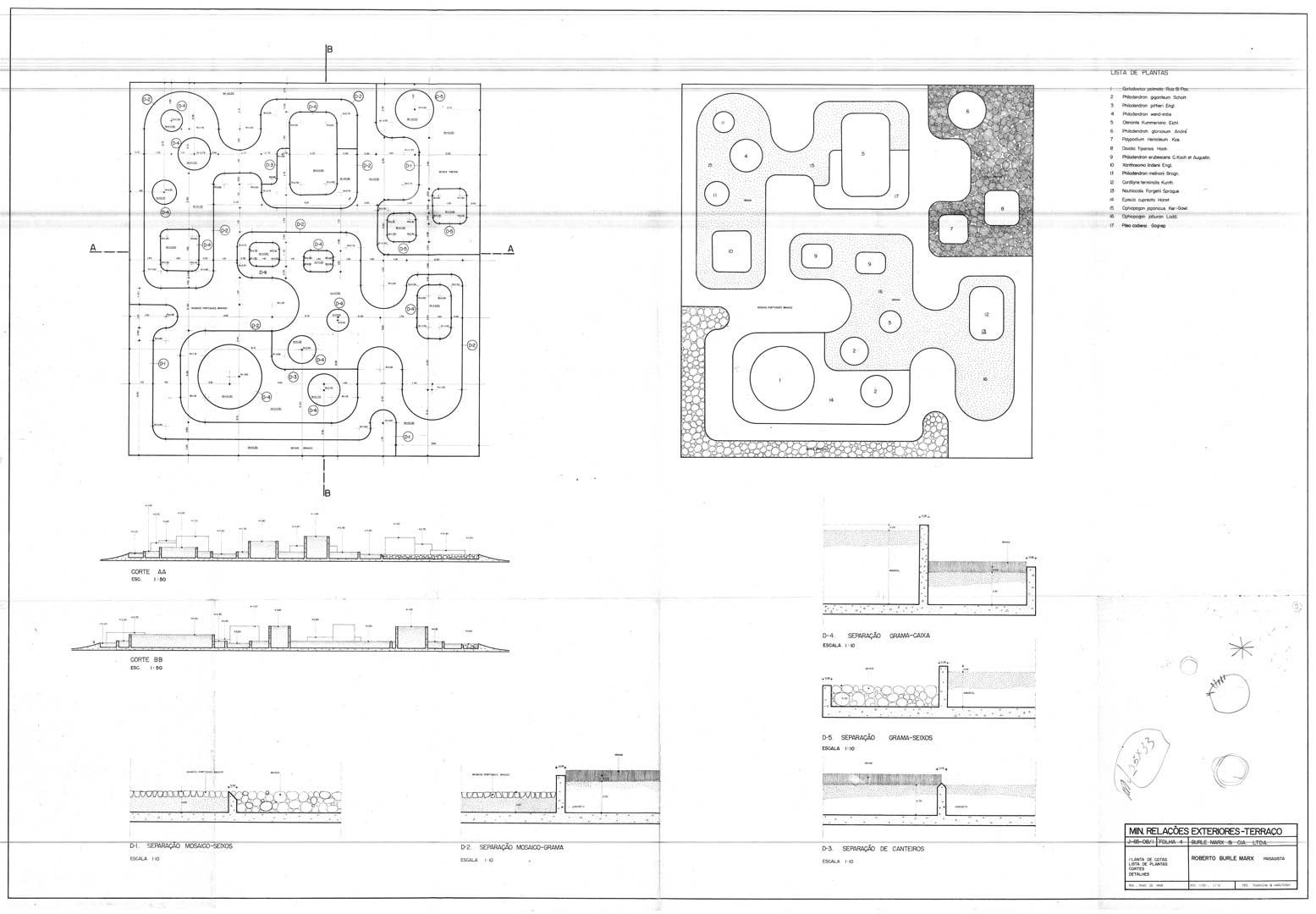
Em 1938, projetou os jardins do Ministério da Educação — o primeiro edifício modernista do Brasil. Também são dele os Jardins da Pampulha em Belo Horizonte (1947) e o Parque da Estância Hidromineral de Araxá, em Minas Gerais. Nos anos 50, projetou o Parque do Ibirapuera, a principal área verde da metrópole de São Paulo.
No sítio Santo Antônio da Bica, interior do estado do Rio, reuniu mais de 3.500 espécies de flora, algumas raras e em extinção, provenientes de todas as partes do mundo.
Executou o projeto paisagístico de Brasília fundado no conceito da função social do jardim público. Deixou sua marca genial nos jardins do Palácio do Itamaraty, do Ministério da Justiça, da Praça do Ministério do Exército, do Parque da Cidade, do Teatro Nacional e do Palácio do Jaburu, bem como no Eixo Monumental de Brasília.
Responsável por um novo conceito de paisagismo urbano, foi aclamado por júri internacional por seus mais de 2 mil projetos como uma das personalidades que mais contribuíram para definir o perfil do século XX. O conjunto de sua obra só é comparado ao de André Le Nôtre (1613-1700), criador dos Jardins de Versalhes.




